Skip to content
AKI HomeAKI Home
  • Mẫu nhà đẹp
    Mẫu nhà tầng đẹp
    Mẫu biệt thự đẹp
    Mẫu nhà cấp 4 đẹp
  • Trang chủ
  • Giới thiệu
  • Thiết kế Kiến trúc nhà đẹp
  • Dịch vụ thiết kế – thi công nội thất
  • Tin tức
  • Liên hệ
Biệt thự |

Biệt thự 3 tầng mái Thái- nhà anh Vinh Vĩnh Phúc

Khuyến mãi đặc biệt giảm 100% phí thiết kế - khi thi công nội thất

Biệt thự 3 tầng mái Thái- nhà anh Vinh Vĩnh Phúc
Biệt thự 3 tầng mái Thái- nhà anh Vinh Vĩnh Phúc

Kiến trúc tân cổ điển là sự kết hợp những đường nét tinh tế, mềm mại hoài niệm từ kiến trúc cổ xưa với những đường nét khỏe khoắn, nhẹ nhàng, thanh lịch phù hợp với lối sống, tính cách cũng như nhịp phát triển của con người hiện đại. Do vậy, kiến trúc tân cổ điển là sự chuyển mình tinh tế, bền theo thời gian, đang được nhiều gia chủ lựa chọn xây dựng làm không gian nghỉ ngơi thư giãn cho các thành viên trong gia đình.

Hôm nay, AKI HOME giới thiệu tới mọi người một mẫu thiết kế độc đáo điển hình của phong cách thiết kế tân cổ điển chúng tôi hoàn thiện cho gia đình anh Vinh tại Vĩnh Phúc nhé.

Thông tin chung về mẫu biệt thự 3 tầng mái thái tại Vĩnh Phúc

Với diện tích nhỏ KTS AKI HOME đã tạo nên một siêu phẩm biệt thự mái thái 3 tầng.

Hãy cùng tìm hiểu thêm và chiêm ngưỡng nét đẹp của ngôi biệt thự 2 tầng độc đáo này qua các hình ảnh cũng như thông tin bên dưới nhé!

  • Diện tích xây dựng: 6 x 13 m
  • Công năng sử dụng:
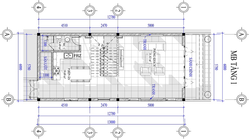
    Tầng 1: Phòng khách, bếp +ăn, WC
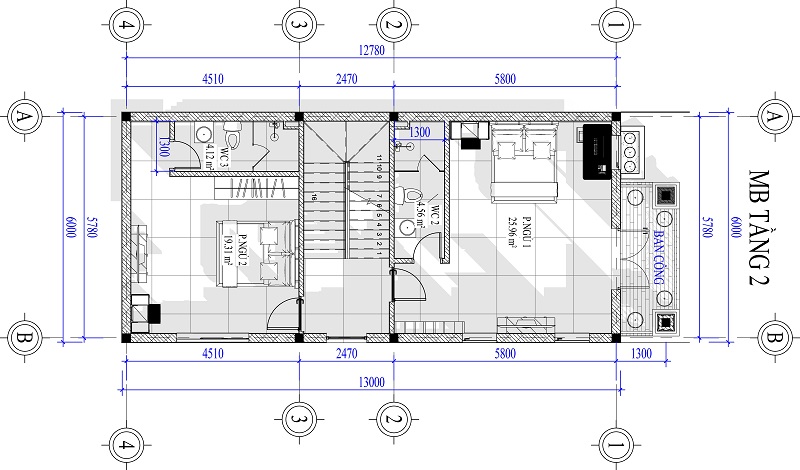
  • Tầng 2: 2 Phòng ngủ master
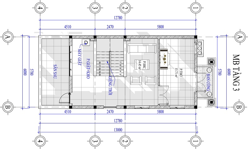
  • Tầng 3: Thờ, phòng SHC, phơi giặt

Phương án 3D phối cảnh tổng thể kiến trúc ngoại thất và sân vườn mẫu biệt thự mái thái 3 tầng tại Vĩnh Phúc

Với nét đẹp sang trọng đầy thu hút về ngoại thất và bố cục mặt bằng công năng được bố trí khoa học, hợp lý, ngôi nhà  này đã hoàn toàn chinh phục được trái tim của chủ đầu tư.

Kiến trúc tân cổ điển với việc tiết chế hoa văn so với kiến trúc cổ điển, chỉ lọc lựa những chi tiết hoa văn điển hình nhất tạo đường nét tinh tế, mềm mại cho tổng thể công trình .

Mẫu nhà  tầng đẹp nhiều mái theo phong cách tân cổ điển được thiết kế vô cùng dễ nhìn về hình khối màu sắc, cân đối 3 phần chân đế, thân và nhiều mái kết hợp tạo thành các lớp khác nhau trên các khối kiến trúc. Ngôi nhà với kiến trúc tân cổ điển sang trọng; tỷ lệ kiến trúc hài hòa hợp lý đã hoàn toàn phô diễn được nét bề thế của tổng thể công trình để nói lên phần nào đó tính cách của gia chủ.

Với biệt thự gam màu vàng be của tường – màu đặc trưng kiến trúc cổ – kết hợp với gam trắng tinh tế của hệ cột trụ khỏe khoắn và gam đỏ nổi bật của hệ mái thái tạo vẻ ngoài thanh thoát, tự nhiên, lôi cuốn, sang trọng, đầy đẳng cấp. Sắc trắng và sự phẳng mịn đơn giản của sơn nước đối lập với sự mộc mạc cũng như chất cảm thô ráp của gạch ngói và gỗ tự nhiên để tạo nên những nét đẹp hài hòa và nổi bật cho ngoại thất ngôi biệt thự.

Cùng với nét đẹp của đường nét kiến trúc, mẫu nhà 3 tầng đẹp nhiều mái còn nổi bật bởi sự kết hợp màu sắc tinh tế đầy sang trọng. Thông thường, kiến trúc tân cổ điển thường thiên về lựa chọn màu nhẹ nhàng, gần gũi thiên nhiên mà vẫn nổi bật sang trọng làm gam màu chủ đạo.

Mẫu thiết kế nhà 3 tầng còn được bố trí khá nhiều cửa sổ bên hông căn biệt thự giúp cho các thành viên trong gia đình có thể đón những tia nắng mặt trời vào buổi sáng rất tốt cho sức khỏe. Hệ thống cửa được bố trí một cách khoa học, không làm mất thẩm mỹ của công trình mà còn góp phần nâng cao diện mạo ấn tượng cho mẫu nhà đẹp tại Vĩnh Phúc này.

Mẫu nhà đẹp 2 tầng nhiều mái được ngắm nhìn từ trên cao với mái ngói màu đỏ rất đẹp mắt, được thiết kế nhiều lớp đạo nên nét độc đáo và ấn tượng.

Ngoài kiến trúc ngoại thất, KTS còn tập trung vào phần sân vườn, tiểu cảnh với bể cá koi phía góc phải cuối nhà.

Quý khách hàng có nhu cầu thiết kế và thi công trọn gói vui lòng liên hệ với chúng tôi qua hotline hoặc fanpage để nhận được từ vấn và hỗ trợ nhanh nhất từ chúng tôi.

☎ Hotline: 032 835 7333

Địa chỉ:

🏠 𝐌𝐢𝐞̂̀𝐧 𝐁𝐚̆́𝐜: – Số 2, liền kề 25, khu đô thị mới Ngô Thì Nhậm, Phường Hà Cầu, Quận Hà Đông, Hà Nội.

🏠 𝐌𝐢𝐞̂̀𝐧 𝐍𝐚𝐦: Vinhome Grand Park, Phường Long Thạnh Mỹ, Quận 9, Hồ Chí Minh.

🏠 𝐁𝐢̀𝐧𝐡 𝐃𝐮̛𝐨̛𝐧𝐠: Đường DT741b, Phố Bàu Bàng,TT Lai Uyên, huyện Bàu Bàng, Tỉnh Bình Dương.

 

CẢM ƠN CÁC BẠN ĐÃ THAM KHẢO !

HẸP GẶP LẠI CÁC BẠN VÀO BÀI VIẾT TỚI !!!

Nhà anh Hải – Bắc Ninh
Nhà anh Hưng – Bắc Giang

Các dự án liên quan

Biệt thự nhà chị Thương – Thanh Hóa
Biệt thự nhà chị Thương – Thanh Hóa
ANH QUANG HẢI PHÒNG
ANH QUANG HẢI PHÒNG
A CÔNG NAM ĐỊNH
A CÔNG NAM ĐỊNH
ANH MẪN LONG AN
ANH MẪN LONG AN
CHỊ HOA BÌNH THUẬN
CHỊ HOA BÌNH THUẬN
ANH ĐẠT TUYÊN QUANG
ANH ĐẠT TUYÊN QUANG
ANH TRUNG HÀ NỘI QUỐC OAI
ANH TRUNG HÀ NỘI QUỐC OAI
ANH TRUNG QUẢNG NINH
ANH TRUNG QUẢNG NINH
ANH THIỆN HƯNG YÊN
ANH THIỆN HƯNG YÊN
Nhà anh Hưng – Bắc Giang
Nhà anh Hưng – Bắc Giang

Công ty Cổ Phần kiến trúc và xây dựng AKI Home.

Địa chỉ :
  •  Miền Bắc: No10, LK02, Dương Nội, Quận Hà Đông, Hà Nội.
  •  Miền Nam: Vinhome Grand Park, Phường Long Thạnh Mỹ, Quận 9, Hồ Chí Minh.
  •  Miền Trung: 25 Phan Đăng Lưu, Phường Trương Thi, TP Vinh, Nghệ An.
  •  Bình Dương: Đường DT741b, Phố Bàu Bàng,TT Lai Uyên, huyện Bàu Bàng, Tỉnh Bình Dương
  •  Hotline : 0973 096963/ 0981 259398/ 0921 789566
  •  Zalo : 0973 096963/ 0981 259398/ 0921 789566
  • Email : nhadepaki@gmail.com
Chính sách chung
  • Mẫu nhà đẹp
  • Mẫu nhà tầng đẹp
  • Mẫu nhà cấp 4 đẹp
  • Mẫu biệt thự đẹp
  • Mẫu chung cư đẹp
Fanpage
Nhà đẹp AKI thiết kế và thi công trọn gói
Bản quyền thuộc về Công ty Cổ Phần Kiến trúc và xây dựng AKI HOME
  • Trang chủ
  • Giới thiệu
  • Thiết kế Kiến trúc nhà đẹp
  • Dịch vụ thiết kế – thi công nội thất
  • Tin tức
  • Liên hệ
  • Mẫu nhà đẹp
    Mẫu nhà tầng đẹp
    Mẫu biệt thự đẹp
    Mẫu nhà cấp 4 đẹp

Đăng ký tư vấn

Hãy để lại số điện thoại, chúng tôi sẽ gọi lại ngay.



* Thông tin của bạn được giữ bí mật

Zalo Facebook Hotline: 0973 096963 Tư vấn

Đăng nhập

Quên mật khẩu?

Đăng ký

Thông tin cá nhân của bạn sẽ được sử dụng để tăng trải nghiệm sử dụng website, quản lý truy cập vào tài khoản của bạn, và cho các mục đích cụ thể khác được mô tả trong chính sách riêng tư.